Wednesday, February 09, 2022

Architecture Wednesday: Harry Weese Designed Modern Tudor

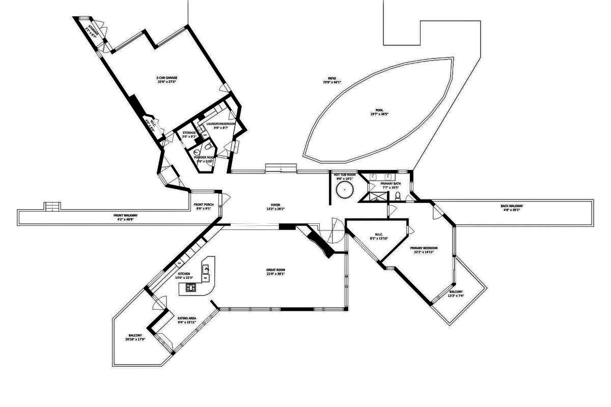
This extraordinary Harry Weese designed home, with pool and tennis court, sits along the Kishwaukee River just 65 miles from downtown Chicago. The mashup of Tudor and Modern, features a stunning main level with teak and oak floors, a full height stone fireplace, soaring ceilings and large windows, and sunken conversation pit. Bluestone pavers in the foyer extend to the patio and pool area, while multiple decks cantilever over the river.

The renovated kitchen is equipped with premium appliances, cherry cabinets and a breakfast area solarium overlooking the river. The primary bedroom suite has a spa-inspired bath, walk-in closet with original built-in cabinetry, and opens to a second story office loft. The second story also includes two other offices, two bedrooms and a full bath, connected by a suspended bridge above the main living and dining areas. The upper and lower levels are accessed by a spiral staircase and an open riser floating staircase on opposite side of the catwalk. The lower level has a bedroom, full bath, recreation area, game room and gas fireplace.

This four bedroom three-and-a-half-bathroom home is made for entertaining. There are multiple gathering areas, from the leaf shaped outdoor pool, the interior whirlpool, to the outdoors along the river, perfect for kayaking in the summer, jogging along in the fall, or cross-country skiing in the winter.

Yours for just $899,000.

Click to emBIGGERate ...

11 comments:

  1. This is proof that a person can have too much wood. Get it off of the ceilings to open up the rooms a bit and I'd search my couch cushions for the money.

    ReplyDelete
  2. As usual, loves the views!
    A friend has a house like this -
    lots of big windows and the other
    week had a drone stop by and look
    into their house at night. eek!
    xoxo :-)

    ReplyDelete
  3. Such a beautiful house

    ReplyDelete
  4. Im letting my gal Deedles run with this one. Im not feeling the aesthetic of this one at all. And I never thought there could be a such thing as too much wood?!?!?!

    ReplyDelete
  5. Ok, so here's the thing: Tudors are not my favs. And this combo? I'm not sure about the exterior...
    The interior, now. Damn, that sitting room. And I want that pendant lamp. NOW.

    I love the His/His bathroom sinks too. And the pool! I'd invite Big over STAT.

    XOXO

    ReplyDelete
  6. Love this place but hate the location. We have lots of family in Illinois and I am glad we only visit.

    ReplyDelete
  7. That exterior fails to convey the beauty within. At first glance? I thought "What white trash hillbilly stuck this crap together?" But the interior is quite magical. Isn't the same true of people? One never knows what lies within. Knock. Knock. Kizzes.

    ReplyDelete
  8. Screams a refresh---And too much wood---V

    ReplyDelete
  9. Great spaces, angles, and light. As for the rest... meh. Not a fan of the interior finishes and their use together (the woods, the stone). It seems dated. Although metal spiral staircases look cool, they‘re not easy to climb or descend. Great for access when space is limited. Also, not a fan of the Mock Tudor exterior. I’ll spend my 899k elsewhere.

    ReplyDelete
  10. Flashback to the 1980's and not all in a good way. I'd pass on this one, or tear it apart and make lots of changes

    ReplyDelete
  11. It may be a black and white building, but Tudor it ain't

    ReplyDelete

Say anything, but keep it civil .......