Wednesday, June 14, 2017

Architecture Wednesday:The Paper Clip

They call it the Flexhouse, but it looks like a Paperclip to me ... or a Sled ... or a Waterski, which might be best since the home sits very near Lake Zurich.

It’s a tall home—four floors—but not terribly large, at least by American standards—just 1,862 sq foot—but it’s so wide open it feels much bigger.

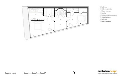
There’s a basement level for the garage and utilities; the first floor features an open plan living, dining and kitchen space on the ground floor; on the second level are two bedrooms, while the third floor features a studio with two large terraces.

But it’s the striking exterior, and the home’s 180-degree views across Lake Zurich that really captures the imagination.

Flexhouse is also anything but a n
ormal square box. The design features a floor plan that goes from wide to narrow to follow the railway lines and shape of the plot. The façade wraps around the building, drawing the eye upward making the house feel like it’s moving, bending ...

Like a paperclip.


Click to emBIGGERate the floor-plans ...

5 comments:

  1. I'm not sure about the design of the exterior, on how I feel about. Maybe a bit too paper clippy for me.... but I am in love with the interior design of the place. The windows, the while and woods, the spiral staircase and those built in book shelves......

    ReplyDelete
  2. Fascinating place. But that first view made me think "condom" (or what goes in it).

    OH, I get it! It's a safe house!!!

    ReplyDelete
  3. Anonymous4:11 AM

    I'm a sucker for a spiral staircase.
    JP

    ReplyDelete
  4. Not my kind of place, but Zurich is a lovely town, somewhere I'd love to go back to.....plus that's where you go when you need to say goodbye to life.

    ReplyDelete

Say anything, but keep it civil .......